Siemensstadt Square

Projektstandort:
Drewitz bei Berlin - Deutschland
Projekt:
Sanierung der Nuthe-Feuchtgebiete und Renaturierung
Planung / Bau:
1998 – 2003, Bau 2003 / 2004
Fläche:
87,2 ha
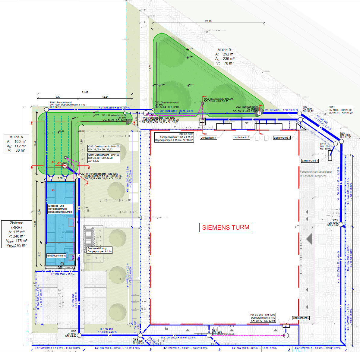
Regenwasserbewirtschaftung:
- Retention und Versickerung des anfallenden Niederschlagswassers der Freiflächen, Dachflächen und der Fassaden sowie öffentlichen Flächen (1,3 ha)
- Versickerung in Mulden und Tiefbeeten
- Reinigung des Niederschlagswassers über die Belebte Bodenzone
- Sammlung, Reinigung und Speicherung des Niederschlagswassers für die Bewässerung in Zisternen (330 m³), Abdeckung von >80% des Wasserbedarfes für die Bewässerung
- Entwässerung und Überflutungsschutz der Lichtschächte mit Hebeanlagen


